Dzisiaj jest: 21.4.2026, imieniny: Jarosława, Konrada, Selmy
Ogłoszenie:

Parterowy dom Dobroń koło Pabianic, Fotowoltaika, Solary, Smart (Używany)

dodano: 2026.01.17 ważne do: 2026.12.17 wyświetleń: 152
1 370 000 PLN do negocjacji Zaproponuj cenę!
Szczegóły ogłoszenia:
Komfortowy dom parterowy z dopracowanym ogrodem w Dobroniu.
Przyjdź zaproponuj swoją cenę.

To dom, który trzeba zobaczyć, by poczuć jego unikalny klimat.
Jeśli szukasz miejsca, które zapewni Ci pełnię komfortu, bezpieczeństwo i codzienny relaks – ta nieruchomość spełni Twoje oczekiwania.

Nowoczesność i funkcjonalność. W tej nieruchomości jest wiele UDOGODNIEŃ!!!!- koniecznie zapoznaj się z opisem, a sam się przekonasz.

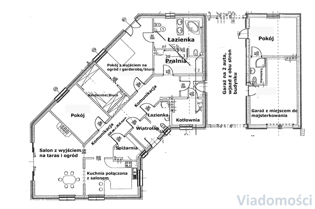
Dom parterowy o przemyślanym układzie, stworzony z myślą o wygodzie wszystkich mieszkańców, również osób z ograniczoną mobilnością.

Nieruchomość została wyposażona w szereg udogodnień technicznych:

podgrzewany podjazd, dach i rynny
  • podgrzewana podłoga
  • klimatyzacja
  • zewnętrzne rolety antywłamaniowe
  • system monitoringu i alarm
  • instalacja fotowoltaiczna
  • solar do podgrzewania wody
  • własna studnia z systemem uzdatniania wody
  • dodatkowo możliwość organizowania kina w ogrodzie, jest na to przygotowany specjalny ekran
Dom składa się z:
 
  • przestronnego salonu z klimatyzacją i wyjściem do ogrodu
  • sypialni głównej z prywatną łazienką, garderobą i wyjściem na ogród
  • dodatkowego pokoju
  • widnej, oddzielnej kuchni do aranżacji
  • dodatkowo znjadziesz odzielny pokój połączony z łazienką -idealne miejsce na biuro, lub pokój nastolatka
  • pralni i suszarni- duża przestrzeń
  • biura w pełni wyposażonego w zabudowane meble
  • kotłowni, piec wysokiej jakości
  • przestronnego hallu i wiatrołapu

Połączony z domem dwustanowiskowy garaż oraz pomieszczenie techniczne.
Garaż pomieści spokojnie 3 auta, a dodatkowo znajdziesz też dużo miejsca do parkowania przed nieruchomością i za.


Zjawiskowy ogród:

Prawdziwa oaza spokoju podzielona na przemyślane strefy:
 
  • strefa dla dzieci – bezpieczne miejsce do zabawy
  • strefa z ogniskiem – idealna na wieczorne spotkania
  • altana z grillem – miejsce spotkań i wspólnych posiłków
  • przestrzeń wypoczynkowa przygotowana pod jacuzzi
  • strefa techniczna z domkiem narzędziowym


Ogród jest nie tylko estetyczny, ale i funkcjonalny. Zainstalowano system zraszaczy, siatkę przeciw kretom,
elementy małej architektury oraz alejki z ozdobnymi nasadzeniami.

Solidna konstrukcja i jakość wykonania

Dom został oddany do użytku w 2009 roku. Zbudowany z pustaka ceramicznego z podwójnym murem,
dach pokryty gontem bitumicznym. Ogrzewanie gazowe zapewnia ciepło(niski koszt utrzymania!) w każdych warunkach.
Dom pozwala na swoją aranżację, według swojej wyobraźni.
Kontakt
Joanna
Dobroń, woj. łódzkie ( Pokaż na mapie)
Kontakt
Podziel się:
Aktualności Archiwum aktualności
Reklama
Zapisz się do newslettera:
Wyrażam zgodę na przetwarzanie moich danych osobowych w celach marketingu usług i produktów partnerów właściciela serwisów.